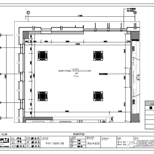
作品名称| Name/黄埔某企业展厅
项目地址| Address/广东广州
项目面积| Area/86㎡
设计单位| Design unit/双鱼装饰
主创设计| Designer/南下
设计团队| Team /双鱼装饰
深化团队| Deepen /优施深化设计
策划编辑| Editor/刀哥























ABOUT US | 关于优施品牌
我们能做的不止是深化设计
优施品牌隶属于广州市谨森设计有限公司,是以深化中大型工装项目的室内外装饰施工图为主,同时承接效果图,BIM设计的专业团队。目前旗下共有全职深化设计师20人,并与广美教授、设计公司创建深化设计培训基地。创业3年来,公司已经拥有一支经验丰富、综合能力较强的设计团队,力求将执行力放在第一位,以前瞻的设计理念和创造性设计思维,致力打造优质的全案落地体系,赢得客户良好的口碑,实现业务辐射全国。
我们的服务
创业3年来,专注室内深化设计、施工图深化、专业施工图绘制、竣工图、水电图设计等。项目包括:酒店、售楼中心、餐饮文娱空间、医院、学校、科技馆、文化馆、办公、会所SPA、KTV、商场、别墅、样板间、展厅、洗浴温泉休假空间等。
微信/电话:16620019991
业务/合作/邮箱:185126481@qq.com
地址:佛山市南海区桂澜路与桂海路交界处丽景苑18号铺

咨询/预约长按二维码添加

延伸阅读/Extended reading
▲深化作品 | 餐饮店
▲深化作品 | 企业展厅
谨森设计提示:文章来源于互联网:近期深化案例:某展厅深化设计图纸分享


关注我们